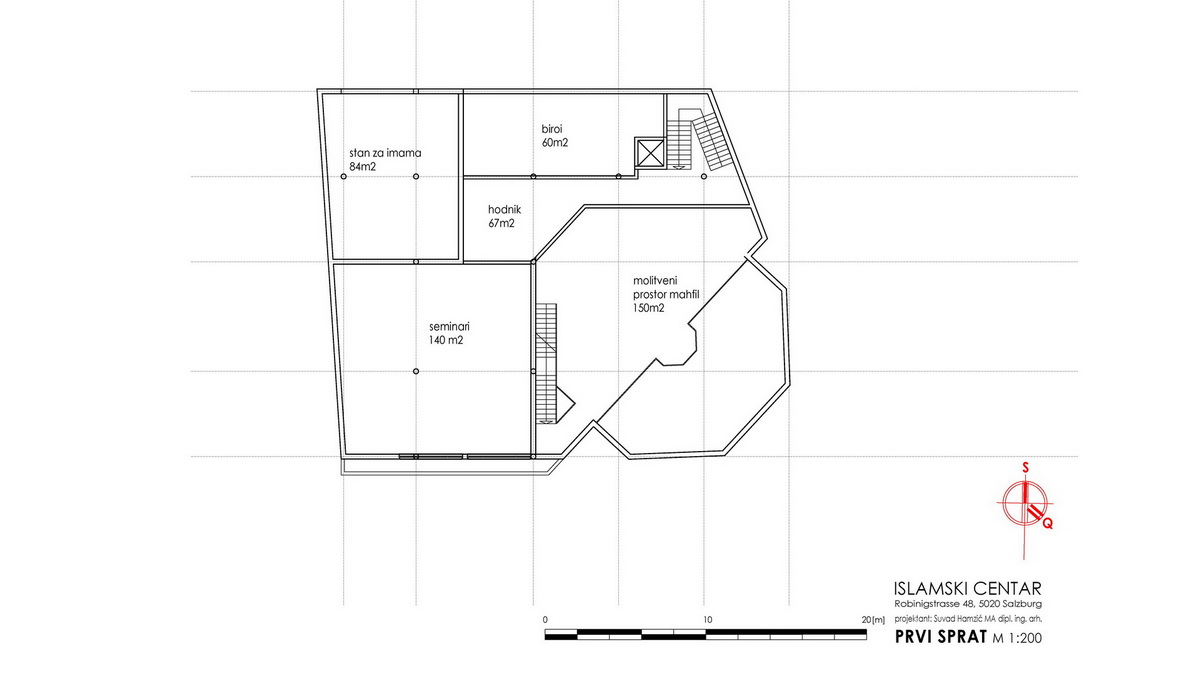
Lokacija: Salzburg, Austrija
Kategorija: Javni sakralni objekti
Status: Ideja, 2015
+387 (0) 61 423 453
+385 (0)91 557 1235
Linkedin
Facebook
Twitter
suvad@hamzic.ba